Modern Floor with Private Entrance

1555 NE Miami Ct, Miami, FL 33132, United States Miami , Florida , USA
  • 2987 Sqft
Price: ₹2,500.00

Property Description

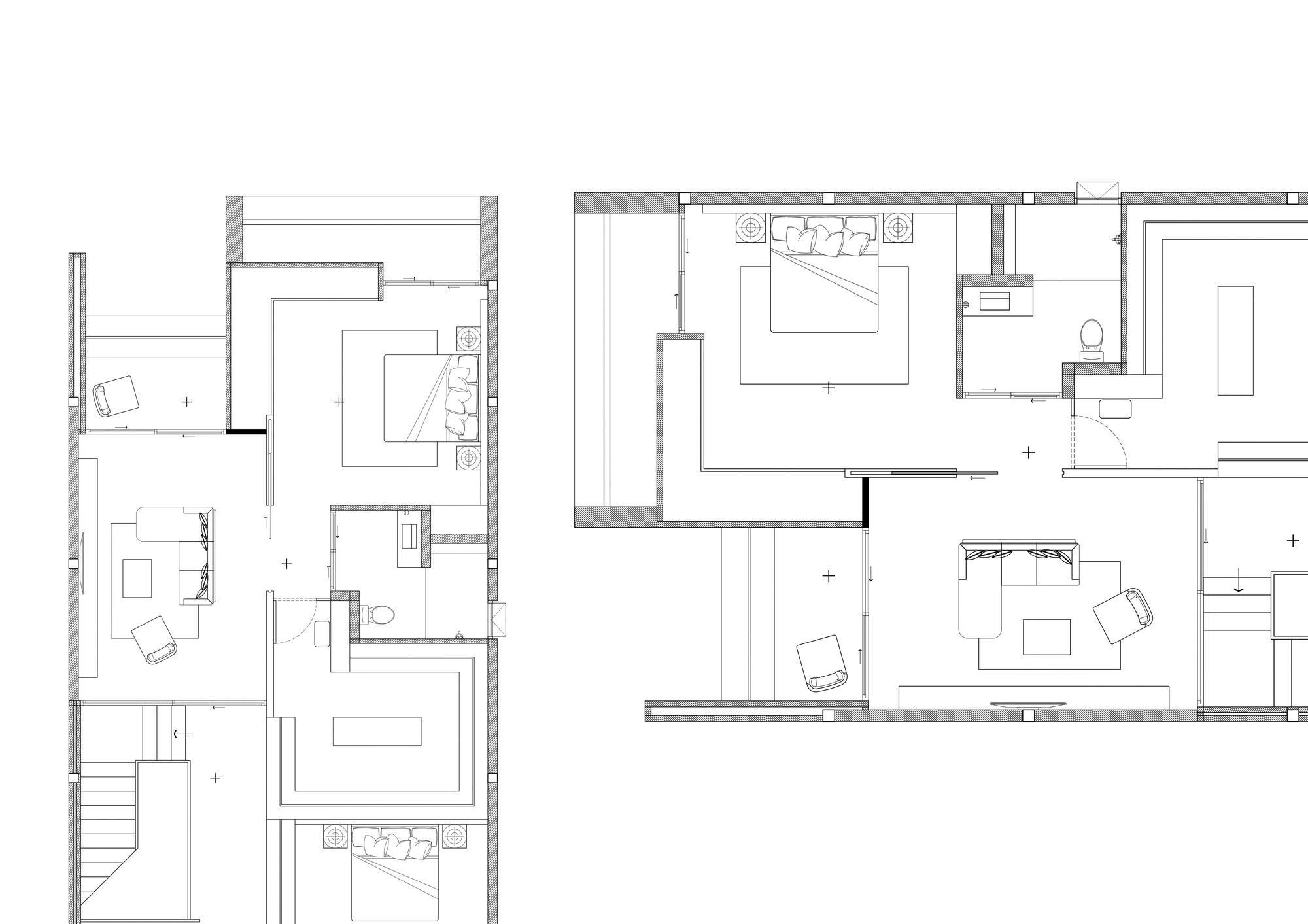
Welcome home! This exquisite two-story townhouse nestled in the community of Sabal Chase boasts 3 bedrooms, including one conveniently located on the first floor, and 2 bathrooms. The thoughtfully crafted layout offers plenty of natural light, enhancing the spacious rooms and tranquil patio area. Imagine savoring morning coffee or hosting intimate gatherings here. Situated near a greenbelt, residents can enjoy endless opportunities for outdoor recreation, while also having easy access to the community clubhouse that is equipped with a pool, gym, and various courts for basketball, tennis, pickleball and racquetball. With top-rated schools, the FL Turnpike, restaurants, Miami Dade College, and a number of shopping options just moments away, this location truly offers convenience and comfort.

Features

Home Type Single Family
Flooring Wood Tile
Utilities Central Cooling System
Parking 1 Car Garage
Home Design Concrete Construction
Kitchen Microwave, Dishwasher
Pet Policy Breed Restrictions
Additional Features Balcony, Property Fronts a Bay or Harbor East

Video

Floor Planning

Location